[買いたい:中古住宅・マンション]宇部市末広町店舗付き中古住宅
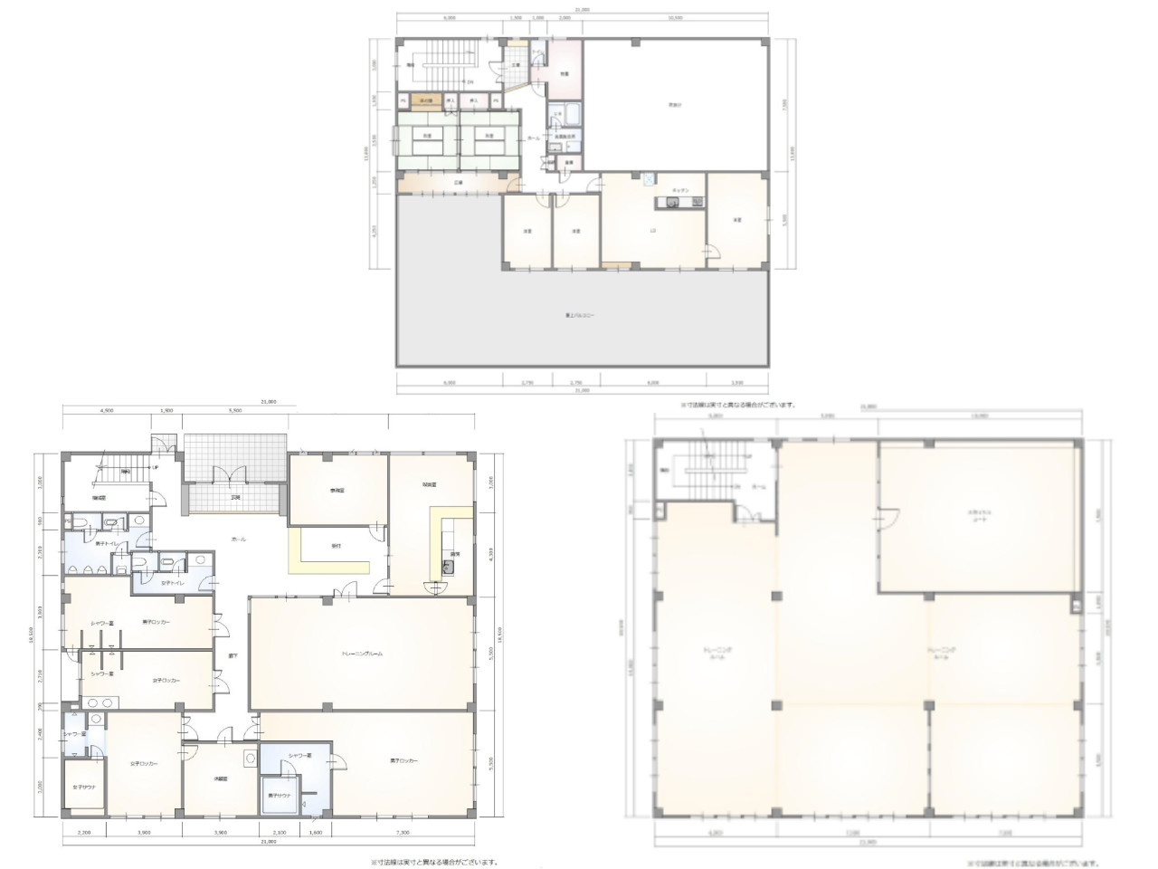
◆元トレーニングジム◆
- 売り家
- 1985[S60]年5月築
46,000,000円 - 恩田小学校/常盤中学校

PDFのダウンロードはこちら
補足情報:エアコン2台以上、シャワールーム、バス・トイレ別、トイレ2箇所、男女別トイレ、収納スペース、プロパンガス、電気
駐車場は最大17台駐車可能です
接道:【一方】 北東 幅:4m 私道 接面:31m




PDFのダウンロードはこちら
補足情報:エアコン2台以上、シャワールーム、バス・トイレ別、トイレ2箇所、男女別トイレ、収納スペース、プロパンガス、電気
駐車場は最大17台駐車可能です
接道:【一方】 北東 幅:4m 私道 接面:31m