不動産トータルコンサルタント
083-972-5786
お問い合わせ
プライバシーポリシー
トップページ
借りたい
小郡エリア
旧山口市内エリア
山口市南部エリア
美祢・宇部・その他
買いたい
新築住宅
中古住宅・マンション
売土地
収益物件・倉庫ほか
貸したい
売りたい
会社概要
お問い合わせ
プライバシーポリシー
山口県山口市小郡下郷793番3号(第一中央ビル4F)
083-972-5786
[買いたい:
中古住宅・マンション
]
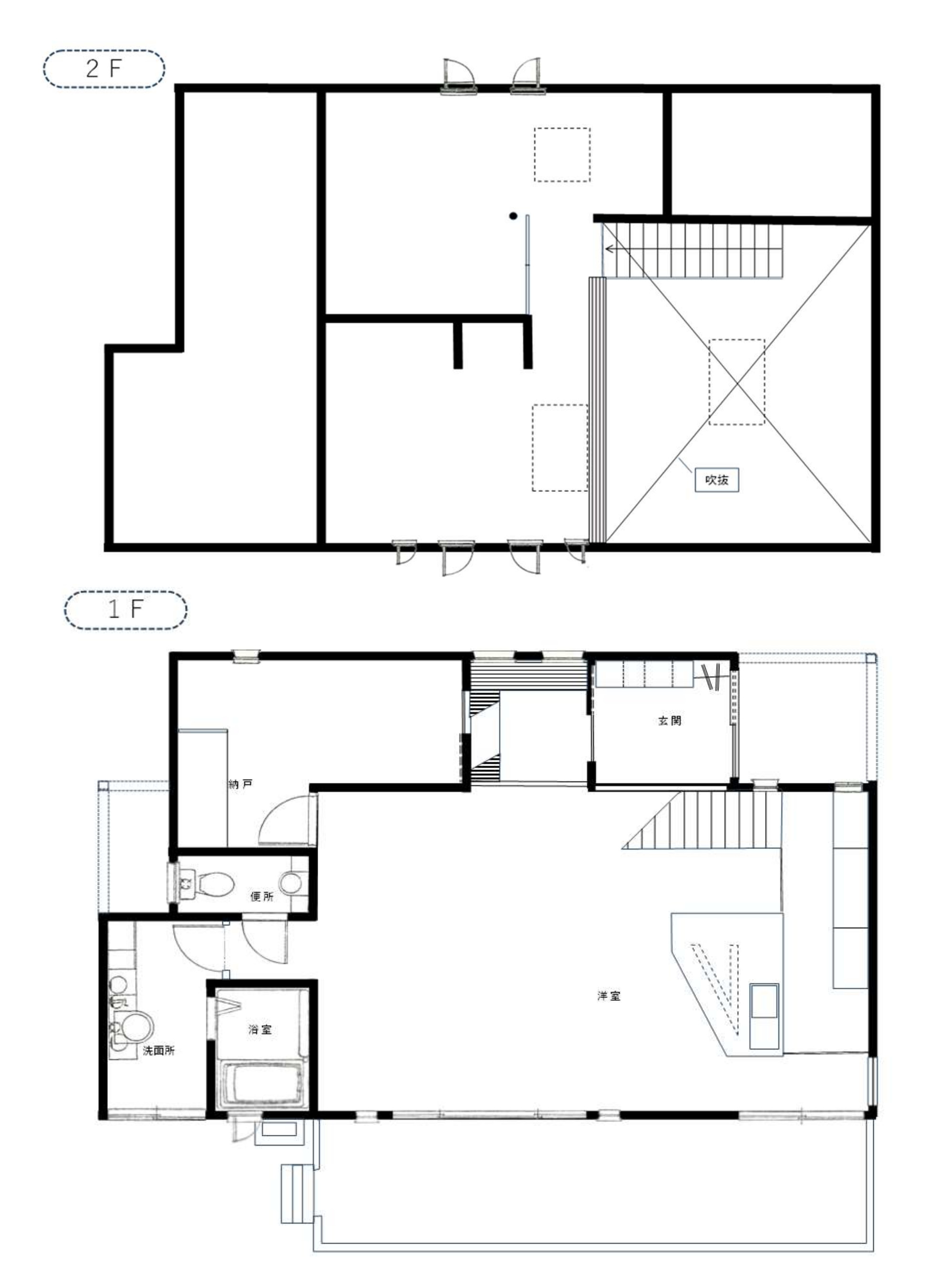
山口市朝倉町中古住宅
売り家
平成6(1994)年11月築
10,500,000円
湯田小学校/湯田中学校
PDFのダウンロードはこちら
物件情報検索
Search
借りたい
エリア別に探す
小郡エリア
旧山口市内
エリア
山口市南部
エリア
美祢・宇部
その他
買いたい
カテゴリー別に探す
新築住宅
中古住宅
マンション
売土地
収益物件
倉庫ほか
貸したい
一覧を表示
売りたい
一覧を表示